Villa d’epoca indipendente a Intra, giardino e portico

Verbania, Via della Resistenza, Piemonte, Italia

EUR 620.000
  1. Commissione 3,5%
  1. Villa storica
  2. Anno di costruzione 1900
  3. 287 m² Superficie totale
  4. 680 m² Terreno
  5. 8 Camere
  6. 6 Camera da letto
  7. 3 Bagno
  8. 3 Piani

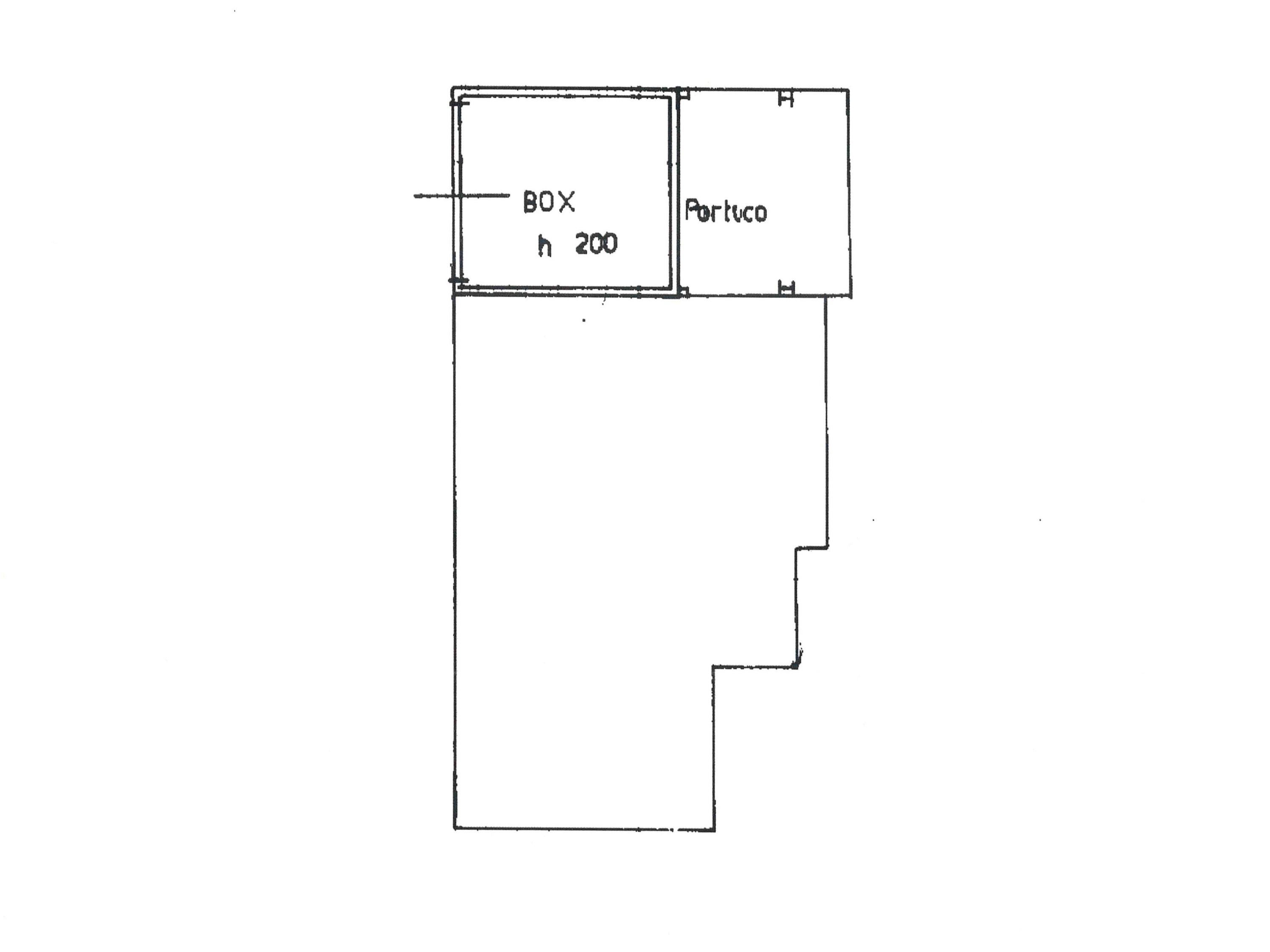
Villa d’epoca indipendente nel cuore di Intra, con giardino, portico e autorimessa. Ampi spazi da personalizzare, a due passi dal lago

Nella primissima vicinanza al centro di Intra, in posizione strategica e comoda a tutti i principali servizi, proponiamo in vendita un’elegante villa indipendente dei primi del ’900, circondata da un piacevole giardino privato e dotata di autorimessa e ampio portico, ideale per vivere momenti di relax all’aperto in totale riservatezza.

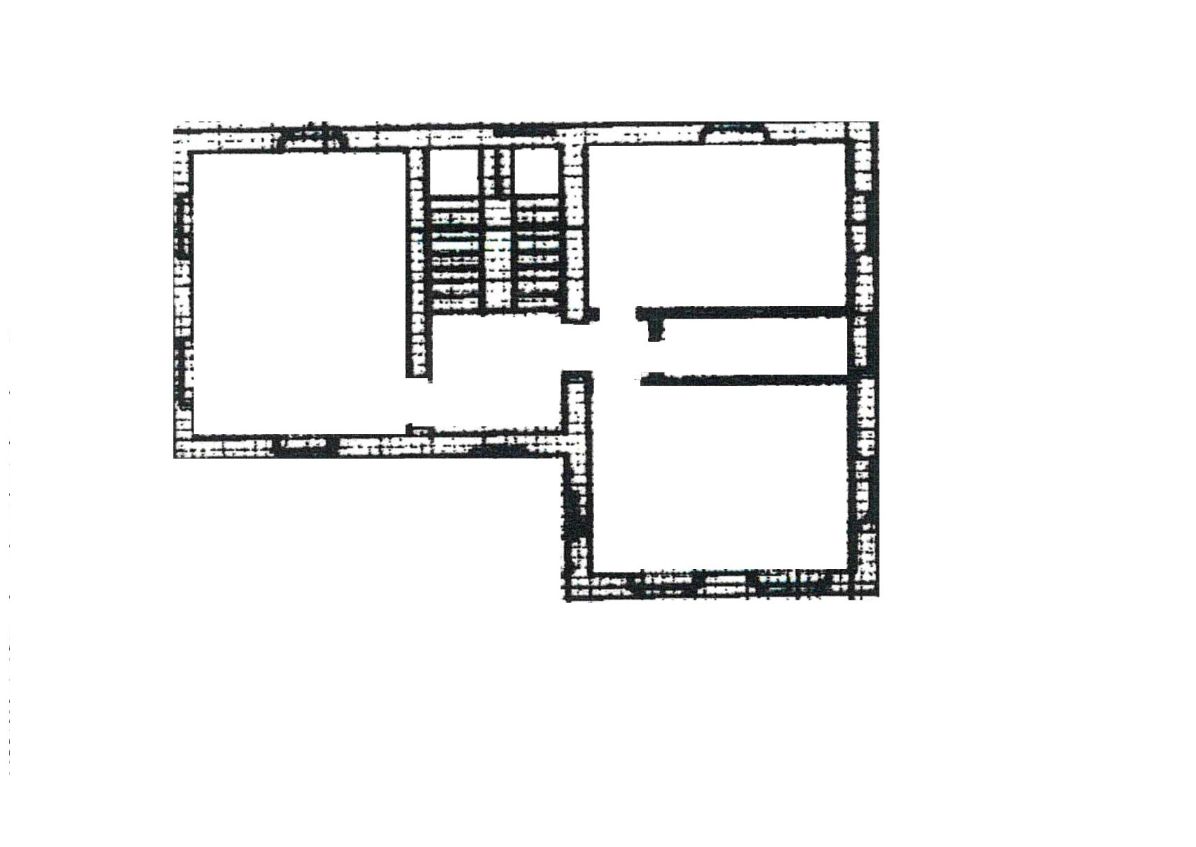
La proprietà, mantenuta allo stato originale, si sviluppa su quattro livelli collegati da scala interna e si distingue per gli ambienti ampi, ben distribuiti e straordinariamente luminosi. Una dimora di grande fascino, che si presta a un’attenta personalizzazione capace di coniugare il comfort contemporaneo con il sapore autentico dell’epoca, esaltandone dettagli architettonici e materiali originari per creare un’atmosfera di raffinata eleganza.

Al piano interrato troviamo due spaziosi locali, tra cui il vano caldaia, caratterizzati da suggestivi soffitti a volta che richiamano il gusto storico della villa.

Il piano terra accoglie con un ingresso signorile che conduce a una camera con camino, perfetta come studio o sala lettura, un ampio salone anch’esso impreziosito dal camino, cucina abitabile e locale lavanderia.

Il primo piano ospita la zona notte principale, composta da una camera padronale di generose dimensioni con bagno privato, oltre ad altre due camere e un secondo bagno.

All’ultimo livello, mansardato ma ben fruibile, si sviluppano ulteriori tre camere e un bagno, spazi ideali per ospiti, area hobby o studio professionale.

Una villa importante, ricca di potenzialità, perfetta per chi desidera realizzare una residenza di charme, elegante e rappresentativa, senza rinunciare alla comodità del centro, facilmente raggiungibile a piedi così come il suggestivo lungolago.
 

Planimetrie

Informazioni legali

Agenzia immobiliare

Città Ideale

Corso Mameli 203

28921 Verbania Intra

Italia
Contatto
Fisso: +39 0323 407435
Seguire Città Ideale

Ricevere via e-mail le nuove offerte immobiliari di questa agenzia. La richiesta di ricerca può essere disattivata in qualsiasi momento.

  • REALPORTICO-ID
    2795073
  • Ultima modifica
    il mese scorso
  • Visualizzazioni
    1.18k
  • Persone raggiunte
    990
Top 10 dei paesi per questa proprietà
Visualizzazioni ultimi 30 giorni

Città Ideale

Scopri altre proprietà storiche

28824 Oggebbio, Piemonte
Immobile di alta classe con un potenziale straordinario, con vista lago, che con una ristrutturazione apporta ulteriore
Italia
Ghiffa
28823 Ghiffa, Piemonte
Villa storica a Ghiffa sul Lago Maggiore